ELPIS・Kira 302号室 浜松市中央区高丘西[マンション]

ELPIS・Kira 302号室 浜松市中央区高丘西[マンション]

マンション[浜松市中央区高丘西]

浜松市の賃貸・お部屋探しをするならスカイポートにお任せください。街を楽しく元気にする不動産会社のスカイポートはお客様にももちろんご満足頂けるような物件をご紹介いたします。お客様に満足頂けるまで、とことん浜松市の賃貸物件をご紹介いたします。浜松市の賃貸ならスカイポートにお任せ下さい。

  • 053-414-5554
  • 営業時間:09:30 ~ 18:30 /定休日:水曜日

会員の方

閉じる

物件詳細

ELPIS・Kira 302号室 浜松市中央区高丘西[マンション]

 

ELPIS・Kira 302号室 浜松市中央区高丘西[マンション] の物件詳細ページです。

物件種別: マンション

お問い合わせ番号:0000006716

間取り(面積)

1LDK

( 56.97㎡ )

賃料(管理費等)

7.4万円

( 4000円 )

交通: 東海道本線(東海) 浜松駅 バス47分 高丘郵便局 バス停徒歩6分

敷金/礼金: - / 1ヶ月

保証金/敷引/償却金: - / - / -

所在地: 浜松市中央区高丘西

築年月: 2023年4月

ポイント

★築浅★高丘西ネット無料1LDK!オートロック付のRC造!ゆったりとしたスペースを確保できる広さがあります。3口コンロ付システムキッチンや、パントリースペースがあるなど、お料理好きの方にもオススメです♪

問い合わせ(無料)

TEL: 053-414-5554

お問い合わせ番号: 0000006716

QRコード

資料請求などはこちら

問い合わせ(無料)

TEL: 053-414-5554

お問い合わせ番号: 0000006716

スタッフからのコメント

★築浅★高丘西ネット無料1LDK!オートロック付のRC造!ゆったりとしたスペースを確保できる広さがあります。3口コンロ付システムキッチンや、パントリースペースがあるなど、お料理好きの方にもオススメです♪

セールスポイント

特徴 耐震構造,耐火構造,南面バルコニー,2F以上,オートロック,カードキー,電子ロック,南面リビング,陽当たり良好,保証人(不要),カード決済可(入居時費用)
設備 敷地内ゴミ置き場,システムキッチン,対面式キッチン,カウンターキッチン,ガスコンロ設置済,3口以上コンロ,グリル,バス・トイレ別,バス有,追い焚き風呂,脱衣所,シャワー,トイレ有,温水洗浄便座,洗面台,洗面所独立,洗面所にドア,洗面化粧台,シャワー付洗面台,エアコン,BS,CS,光ファイバー,ネット使用料不要,TVインターホン,給湯,ガス給湯,3点給湯,フローリング,室内洗濯機置場,洗濯機置場,ウォークインクローゼット,シューズボックス,ガス(プロパン),下水(公共下水),水道(公営),電気
光ファイバー エレベーター
天井高 空調 1基
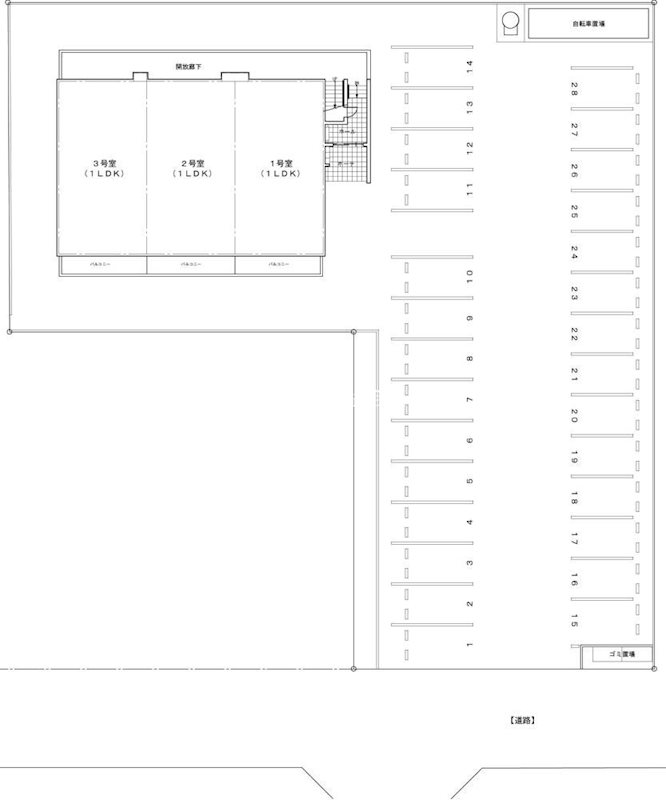
駐車場 駐車場:付(無料) 駐車可能台数(1台) 駐輪場:有
周辺施設 スーパー:フードマーケットMom高丘東店 668m
コンビニ:ファミリーマート 浜松高丘西店 433m
ドラッグストア:クリエイトSD(エス・ディー) 浜松高丘店 618m
ホームセンター:ジャンボエンチョー浜松店 1166m
警察署・交番:浜松中央警察署葵高丘交番 715m
郵便局:浜松高丘郵便局 461m
銀行:静岡銀行浜松高丘支店 506m

物件概要

物件名 ELPIS・Kira 302号室
物件所在地 静岡県浜松市中央区高丘西1丁目 周辺地図
交通機関 東海道本線(東海) 浜松駅 バス47分 高丘郵便局 バス停徒歩6分
遠州鉄道 曳馬駅 徒歩70分
遠州鉄道 上島駅 徒歩62分
間取り詳細 洋室(6.33畳) LDK(16.68畳)
専有面積 56.97㎡
所在階/地上階数 3 / 4 部屋向き 南東
建物構造 鉄筋コンクリート 築年月 2023年4月
総戸数 12
賃料 7.4万円 管理費等 4000円
敷金 - 礼金 1ヶ月
保証金 - 更新料 30,000円
積増し敷金 - 積増し理由
その他一時金 契約一時金:100,000円 ICカードキー代:6,600円 その他費用
その他月次費用 緊急サポート24:1,100円 自治会費:850円
損害保険 有 料金:20000円 損保期間:24ヶ月 
契約形態 普通借家契約 期間 契約期間:2年
保証会社 必須 【ジャックス】 初回:30,000円 月額:総月額賃料2% 更新料なし 保証人代行 必須
現況 退去予定 入居時期 期日指定 2026年3月18日
入居条件 ペット(不可),二人(可)
IT重説

その他

取引態様 仲介先物 自社管理番号 0000006716
情報更新日 2026年1月27日 次回更新予定日 2026年2月10日
不動産会社コード 2113670 物件管理コード 1123303071430000014480
  • ※間取りの「S」はサービスルーム(納戸)です。
  • ※QRコードは(株)デンソーウェーブの登録商標です。

資料請求などはこちら

問い合わせ(無料)

TEL: 053-414-5554

お問い合わせ番号: 0000006716

お問い合わせ先:スカイポート株式会社 本店

所在地 : 静岡県浜松市中央区高丘東1丁目2-39
TEL : 053-414-5554
免許番号 : 静岡県知事(7)第10841号
加盟団体 : 社団法人 全国宅地建物取引業保証協会

この部屋を見学予約

ホームへ戻る